Dom w Riverach 10 Stan deweloperski
Zgłobice gm. Tarnów Pokaż na mapie ›
Dodane: Czwartek, 29 Styczeń, 2026 01:50
650 000 zł
6250 zł/m2
Szczegóły ogłoszenia
- Kategoria: Domy / Sprzedaż
- Powierzchnia:104 m2
- Liczba pokoi:4 pokoje
- Pow. działki:310 m2
- Rynek:Pierwotny
- Rok budowy:2025
- Sprzedaż:Pośrednik
- Cena: 650 000 zł / 6250 zł/m2
Opis oferty
Nowość na rynku pierwotnym w Koszyce Małe/ ZgłobiceDom w stanie deweloperskim na działce 310 m²
Powierzchnia netto domu bez garażu 86,1 m²
Powierzchnia garażu 16,28 m²
Powierzchnia użytkowa (bez schodów) 97,98 m²
Powierzchnia podłóg 104,53 m²
Powierzchnia całkowita 139,92 m²
W bryle domu zaprojektowano jednostanowiskowy garaż. Wygodny dom z
poddaszem użytkowym . Prostą bryłę wieńczy bezokapowy dach
dwuspadowy, który podkreśla jej nowoczesny charakter.
Otwarta przestrzeń dzienna urzeka szerokim przeszkleniem tarasowym,
przewidziano w niej ustawny salon, część jadalnianą oraz kuchnię
z funkcjonalną zabudową. W pobliżu wiatrołapu wygospodarowano
także miejsce na toaletę. Dom jest domem energooszczędnym,
nowoczesnym, małym i funkcjonalnym w korzystnej cenie.
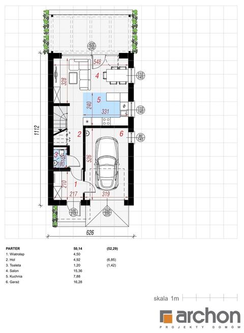
PARTER 50,14 (52,29)
1. Wiatrołap 4,50
2. Hol 4,92(6,85)
3. Toaleta 1,20(1,42)
4. Salon 15,36
5. Kuchnia 7,88
6. Garaż 16,28
PODDASZE 52,24
1. Korytarz 5,70
2. Schody 4,40
3. Pokój 8,31
4. Pokój 12,49
5. Łazienka 6,51
6. Pokój 8,92
7. Pokój 5,91
Dom w cenie 650 000 zł dostępny jest w stanie deweloperskim. W cenie
zawarte są wszystkie instalacje, w tym klimatyzacja oraz pompa
ciepła.
Dom wyposażony jest w ogrzewanie podłogowe, wykonane są tynki
wewnętrzne. Całe obejście zostało zakończone – wykonany taras,
opaska wokół budynku, wyrównany i ogrodzony teren.
Planowany termin zakończenia inwestycji: czerwiec 2026 r.
Powiadom o podobnych ogłoszeniach
Lokalizacja: Zgłobice
Kategoria: Nieruchomości » Domy » Sprzedaż
Cena: od 552500 zł do 747500 zł Powierzchnia : od 88 m2 do 120 m2
Chcę otrzymywać powiadomienia o nowych ofertach
KNC Nieruchomości Sp.zo.o.
Konto firmowe
Na Lento.pl od 04 kwi 2024
Strona użytkownika
- Wypromuj ogłoszenie
- Zgłoś naruszenie
- Drukuj ulotkę
- Edytuj/usuń ogłoszenie
- Udostępnij ogłoszenie
- Dodaj na Facebook































